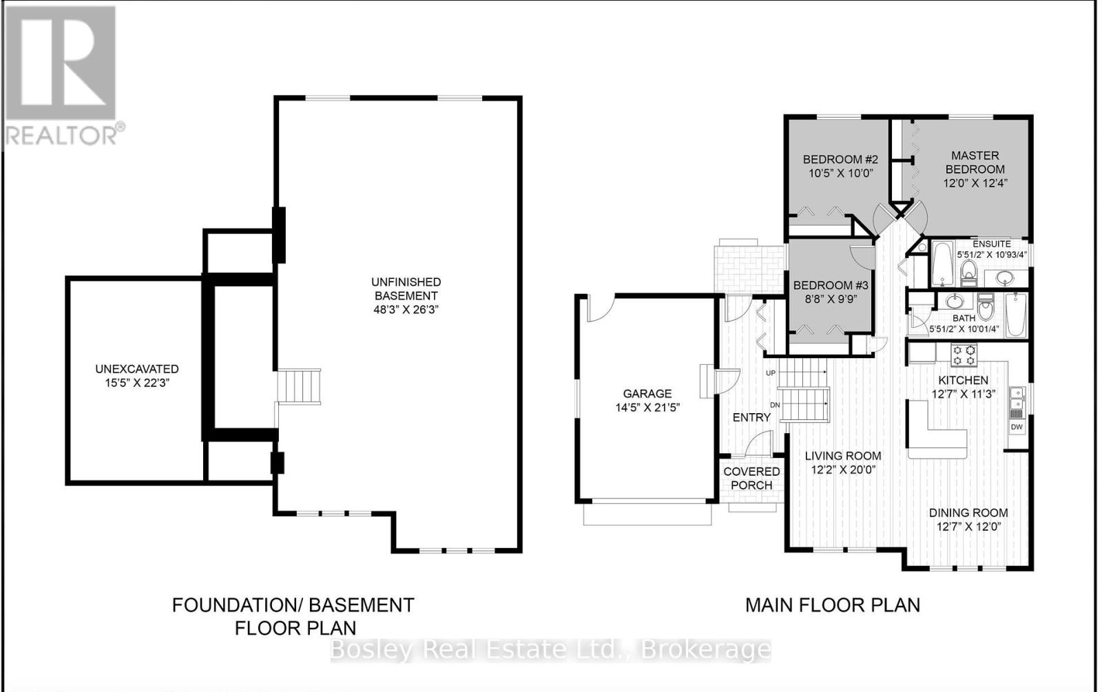
TO BE BUILT: Situated in a prime location between Meaford & Thornbury, this custom bungalow offers an ideal setting to enjoy spectacular sunsets and an elevated 4-season lifestyle. Just moments from the stunning beaches of Georgian Bay. Explore the vibrant downtown Meaford, or charming Thornbury with their boutiques, artisanal shops, inviting cafes, and bustling art scenes or indulge in the culinary offerings of the areas renowned restaurants. With pristine golf courses, Blue Mountain & the area's private ski clubs nearby, outdoor enthusiasts can enjoy a range of activities, from cycling and hiking to skiing and snowboarding. Designed for main-floor living, this 3-bedroom, 2-bathroom bungalow features a custom kitchen, open-concept living/dining space, and seamless flow that combines both style and function. The attached garage offers convenient access to the foyer, adding practicality to the home's design.With 1,347 sq. ft. of finished main-floor living space and an unfinished basement roughed-in for a 3-piece bathroom, this home offers limitless potential for customization.Built by JCB Enterprises, a trusted local builder with over 28 years of experience, this home blends exceptional craftsmanship with quick access to the natural beauty and recreational opportunities of the South Georgian Bay region. (id:14494)
| MLS® Number | X11919091 |
| Property Type | Single Family |
| Community Name | Meaford |
| Amenities Near By | Beach, Ski Area, Marina |
| Equipment Type | Water Heater |
| Features | Wooded Area, Country Residential |
| Parking Space Total | 3 |
| Rental Equipment Type | Water Heater |
| Bathroom Total | 3 |
| Bedrooms Above Ground | 3 |
| Bedrooms Total | 3 |
| Age | New Building |
| Architectural Style | Bungalow |
| Basement Development | Unfinished |
| Basement Type | Full (unfinished) |
| Cooling Type | Central Air Conditioning |
| Exterior Finish | Vinyl Siding, Concrete |
| Foundation Type | Concrete |
| Heating Fuel | Propane |
| Heating Type | Forced Air |
| Stories Total | 1 |
| Size Interior | 1,100 - 1,500 Ft2 |
| Type | House |
| Attached Garage |
| Acreage | No |
| Land Amenities | Beach, Ski Area, Marina |
| Sewer | Septic System |
| Size Depth | 250 Ft |
| Size Frontage | 100 Ft |
| Size Irregular | 100 X 250 Ft |
| Size Total Text | 100 X 250 Ft|1/2 - 1.99 Acres |
| Surface Water | Lake/pond |
| Zoning Description | Residential |
| Level | Type | Length | Width | Dimensions |
|---|---|---|---|---|
| Main Level | Primary Bedroom | 3.66 m | 3.76 m | 3.66 m x 3.76 m |
| Main Level | Bedroom | 3.17 m | 3.05 m | 3.17 m x 3.05 m |
| Main Level | Bedroom 2 | 2.64 m | 2.97 m | 2.64 m x 2.97 m |
| Main Level | Living Room | 3.71 m | 6.1 m | 3.71 m x 6.1 m |
| Main Level | Kitchen | 3.84 m | 3.43 m | 3.84 m x 3.43 m |
| Main Level | Dining Room | 3.84 m | 3.66 m | 3.84 m x 3.66 m |
| Cable | Available |
https://www.realtor.ca/real-estate/27792343/pt83-third-line-meaford-meaford
Vanessa Arellano-Carroll
Salesperson
(705) 444-9990
(416) 322-8800
www.bosleyrealestate.com/
Fraser Macdonald
Salesperson
(705) 444-9990
(416) 322-8800
www.bosleyrealestate.com/