2 Bedroom
1 Bathroom
Raised Bungalow
Central Air Conditioning
Forced Air
$1,800 Monthly
This bright and airy 2 bedroom lower level apartment with ensuite laundry will definitely surprise you! With approx. 1000 sq ft, separate entrance, on a quiet street just minutes to downtown Rockwood, a stone's throw to a GO bus stop. 10 minutes to Acton and 12 minutes to Guelph. Separate Hydro meter on premises. Hydro, Gas, and Water extra. (id:14494)
Property Details
|
MLS® Number
|
X12089941 |
|
Property Type
|
Single Family |
|
Community Name
|
Rockwood |
|
Features
|
Carpet Free, In Suite Laundry |
|
Parking Space Total
|
1 |
Building
|
Bathroom Total
|
1 |
|
Bedrooms Above Ground
|
2 |
|
Bedrooms Total
|
2 |
|
Age
|
6 To 15 Years |
|
Appliances
|
All, Dishwasher, Dryer, Stove, Washer, Refrigerator |
|
Architectural Style
|
Raised Bungalow |
|
Basement Development
|
Finished |
|
Basement Type
|
N/a (finished) |
|
Construction Style Attachment
|
Detached |
|
Cooling Type
|
Central Air Conditioning |
|
Exterior Finish
|
Vinyl Siding, Brick Facing |
|
Foundation Type
|
Poured Concrete |
|
Heating Fuel
|
Natural Gas |
|
Heating Type
|
Forced Air |
|
Stories Total
|
1 |
|
Type
|
House |
|
Utility Water
|
Municipal Water |
Parking
|
Attached Garage
|
|
|
No Garage
|
|
Land
|
Acreage
|
No |
|
Sewer
|
Sanitary Sewer |
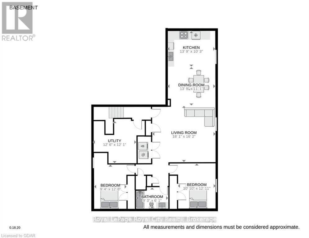
Rooms
| Level |
Type |
Length |
Width |
Dimensions |
|
Basement |
Bedroom |
3.048 m |
3.6576 m |
3.048 m x 3.6576 m |
|
Basement |
Bedroom 2 |
2.8448 m |
3.8608 m |
2.8448 m x 3.8608 m |
|
Basement |
Bathroom |
2.8194 m |
1.8542 m |
2.8194 m x 1.8542 m |
|
Basement |
Living Room |
5.5118 m |
4 m |
5.5118 m x 4 m |
|
Basement |
Kitchen |
4.191 m |
3 m |
4.191 m x 3 m |
|
Basement |
Dining Room |
4.191 m |
3.3782 m |
4.191 m x 3.3782 m |
Utilities
|
Cable
|
Available |
|
Sewer
|
Installed |
https://www.realtor.ca/real-estate/28184737/lower-515-main-street-s-guelpheramosa-rockwood-rockwood