4 Bedroom
6 Bathroom
5,000 - 100,000 ft2
Central Air Conditioning
Forced Air
Waterfront
Acreage
$12,500,000
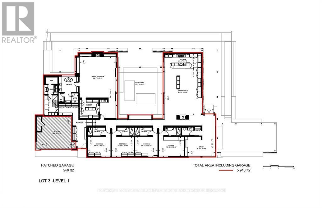
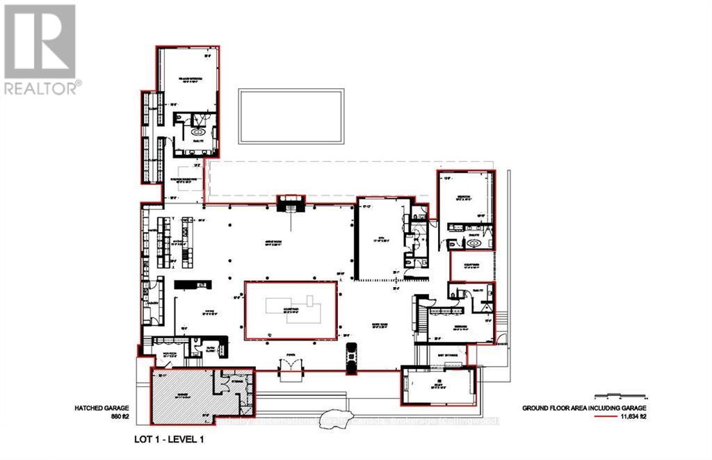
Nestled within a gated development designed by Hariri Pontarini Architects, this exclusive 2.5-acre waterfront retreat is a testament to luxury living. Inspired by the open-concept charm of Bali, the property features two distinctive homes, a grand 12,000 sq ft residence, and a more intimate 6,000 sq ft retreat, each exuding bespoke design. Surrounded by tranquility, the estate offers easy access to recreational activities such as skiing, golf, and hiking. Notably, a Transport Canada-approved helicopter landing pad adds a touch of convenience. With the frame and roof completed, this property provides a unique opportunity for customization by the new owners, with architectural design and project management already in place, you have the freedom to choose your own style and finishes. The package also includes a vacant lot for potential expansion, allowing for an additional house, tennis court, or pool. Positioned for seclusion yet accessibility, this waterfront retreat offers a harmonious blend of nature, luxury, and personalization in an unparalleled setting. (id:14494)
Property Details
|
MLS® Number
|
X10434964 |
|
Property Type
|
Single Family |
|
Community Name
|
Blue Mountains |
|
Easement
|
Unknown, None |
|
Parking Space Total
|
18 |
|
Water Front Type
|
Waterfront |
Building
|
Bathroom Total
|
6 |
|
Bedrooms Above Ground
|
4 |
|
Bedrooms Total
|
4 |
|
Age
|
New Building |
|
Basement Development
|
Unfinished |
|
Basement Type
|
Crawl Space (unfinished) |
|
Construction Style Attachment
|
Detached |
|
Cooling Type
|
Central Air Conditioning |
|
Exterior Finish
|
Wood |
|
Foundation Type
|
Concrete |
|
Half Bath Total
|
1 |
|
Heating Fuel
|
Natural Gas |
|
Heating Type
|
Forced Air |
|
Stories Total
|
2 |
|
Size Interior
|
5,000 - 100,000 Ft2 |
|
Type
|
House |
|
Utility Water
|
Municipal Water |
Parking
Land
|
Access Type
|
Private Road |
|
Acreage
|
Yes |
|
Sewer
|
Sanitary Sewer |
|
Size Frontage
|
222 M |
|
Size Irregular
|
222 |
|
Size Total
|
222.0000|2 - 4.99 Acres |
|
Size Total Text
|
222.0000|2 - 4.99 Acres |
|
Zoning Description
|
R1-1-47 R1-1-127b |
Rooms
| Level |
Type |
Length |
Width |
Dimensions |
|
Second Level |
Bedroom |
5.51 m |
4.78 m |
5.51 m x 4.78 m |
|
Second Level |
Bathroom |
|
|
Measurements not available |
|
Main Level |
Bathroom |
|
|
Measurements not available |
|
Main Level |
Bathroom |
|
|
Measurements not available |
|
Main Level |
Bathroom |
|
|
Measurements not available |
|
Main Level |
Great Room |
19.58 m |
9.12 m |
19.58 m x 9.12 m |
|
Main Level |
Primary Bedroom |
6.32 m |
7.67 m |
6.32 m x 7.67 m |
|
Main Level |
Other |
|
|
Measurements not available |
|
Main Level |
Bedroom |
5.79 m |
6.07 m |
5.79 m x 6.07 m |
|
Main Level |
Bathroom |
|
|
Measurements not available |
|
Main Level |
Bedroom |
7.85 m |
3.51 m |
7.85 m x 3.51 m |
|
Main Level |
Bathroom |
|
|
Measurements not available |
|
Main Level |
Dining Room |
8.38 m |
5.69 m |
8.38 m x 5.69 m |
|
Main Level |
Kitchen |
3.43 m |
6.2 m |
3.43 m x 6.2 m |
|
Main Level |
Pantry |
9.12 m |
2.44 m |
9.12 m x 2.44 m |
|
Main Level |
Mud Room |
3.38 m |
2.95 m |
3.38 m x 2.95 m |
|
Main Level |
Laundry Room |
4.88 m |
2.44 m |
4.88 m x 2.44 m |
|
Main Level |
Other |
9.35 m |
10.77 m |
9.35 m x 10.77 m |
|
Main Level |
Other |
5.44 m |
9.78 m |
5.44 m x 9.78 m |
|
Main Level |
Office |
8.56 m |
4.11 m |
8.56 m x 4.11 m |
https://www.realtor.ca/real-estate/27491963/lots-1-4-deer-lane-blue-mountains-blue-mountains