612 26th Avenue Hanover, Ontario N4N 3B8

4 Bedroom 3 Bathroom 1,100 - 1,500 ft2
Raised Bungalow Fireplace Central Air Conditioning, Air Exchanger Forced Air

$789,900

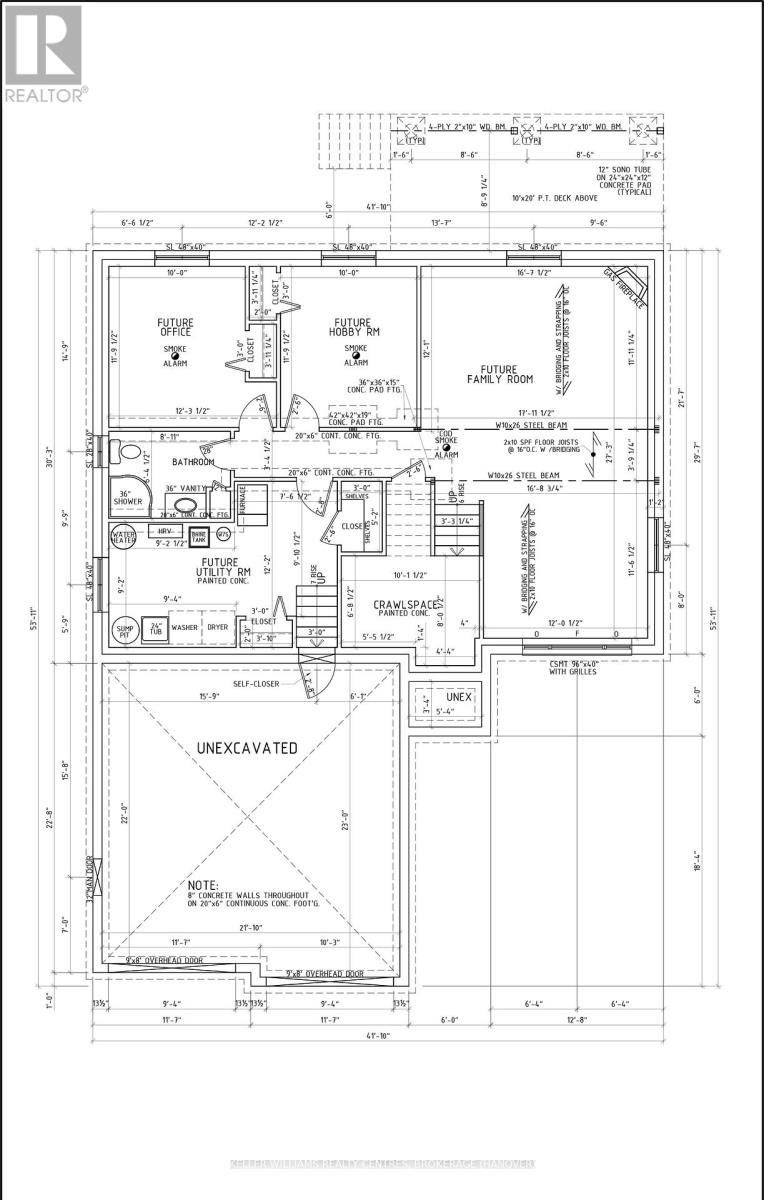
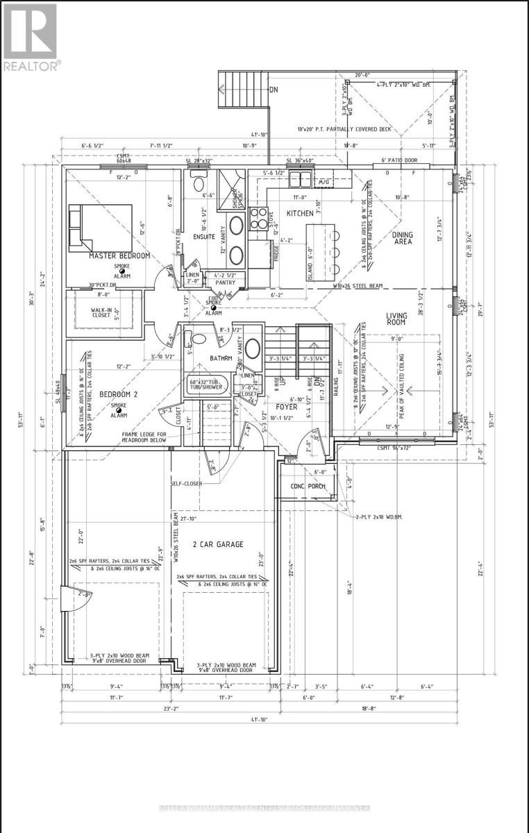
Here is your opportunity to live in a wonderful new subdivision of Hanover surrounded by trees and close to many amenities. This raised stone bungalow provides quality finishes including hardwood floors, a vaulted ceiling in the open concept living and kitchen area, and walk out to partially covered deck. Master bedroom offers 4 pc ensuite and walk-in closet. You'll also find a second main level bed and bath. Finished lower level includes family room with gas fireplace, hobby room & office (or 2 more bedrooms), and 3pc bath. Property comes with sodded yard, and Tarion warranty. (id:14494)

Property Details

MLS® Number X10848127
Property Type Single Family
Community Name Hanover
Amenities Near By Hospital
Features Flat Site, Sump Pump
Parking Space Total 6
Structure Deck, Porch

Building

Bathroom Total 3
Bedrooms Above Ground 2
Bedrooms Below Ground 2
Bedrooms Total 4
Age 0 To 5 Years
Appliances Water Meter, Garage Door Opener
Architectural Style Raised Bungalow
Basement Development Finished
Basement Type Full (finished)
Construction Style Attachment Detached
Cooling Type Central Air Conditioning, Air Exchanger
Exterior Finish Stone, Vinyl Siding
Fire Protection Smoke Detectors
Fireplace Present Yes
Fireplace Total 1
Foundation Type Poured Concrete
Heating Fuel Natural Gas
Heating Type Forced Air
Stories Total 1
Size Interior 1,100 - 1,500 Ft2
Type House
Utility Water Municipal Water

Parking

Attached Garage
Garage

Land

Acreage No
Land Amenities Hospital
Sewer Sanitary Sewer
Size Irregular 50.7 X 115.8 Acre
Size Total Text 50.7 X 115.8 Acre|under 1/2 Acre
Zoning Description R2

Rooms

Level Type Dimensions
Basement Recreational, Games Room 5.05 m x 7.98 m
Basement Bedroom 3 3.05 m x 3.58 m
Basement Bedroom 4 3.05 m x 3.58 m
Basement Utility Room 2.79 m x 3.76 m
Main Level Kitchen 3.35 m x 3.81 m
Main Level Dining Room 3.25 m x 3.84 m
Main Level Living Room 4.75 m x 3.89 m
Main Level Bedroom 3.71 m x 3.81 m
Main Level Bedroom 2 3.71 m x 3.43 m

Utilities

Cable Available
Wireless Available
Sewer Installed

https://www.realtor.ca/real-estate/27715639/612-26th-avenue-hanover-hanover

Tracey Kirstine
Salesperson

(519) 881-8087
www.youtube.com/embed/Jz1no3bmMYQ
kirstinecassidyrealtygroup.com/
www.facebook.com/traceykirstinerealtygroup
www.instagram.com/kirstinecassidyrealtygroup/

Keller Williams Realty Centres
517 10th Street
Hanover, Ontario N4N 1R4

(877) 895-5972
(905) 895-3030
kwrealtycentres.com/

Livia Cassidy
Salesperson

(226) 668-0041
kirstinecassidyrealtygroup.com/
www.facebook.com/traceykirstinerealtygroup
www.instagram.com/kirstinecassidyrealtygroup/ www.instagram.com/kirstinecassidyrealtygroup/

Keller Williams Realty Centres
517 10th Street
Hanover, Ontario N4N 1R4

(877) 895-5972
(905) 895-3030
kwrealtycentres.com/