Welcome to this beautiful 4-bedroom, 2-bathroom bungalow, perfectly nestled on a generous riverfront lot along the scenic Sauble River in the desirable community of Tara. This home offers more than meets the eye, with a spacious layout and a peaceful setting on a quiet street in a friendly neighbourhood. Enjoy the outdoors in your private, fully fenced yard featuring a stone patio, two storage sheds, a handy clothesline, and stunning views of the river. Whether you're relaxing in the shade or entertaining guests, this property provides the perfect backdrop for making lasting memories. Inside, you'll find an inviting eat-in kitchen, cozy living spaces, and economical heating with both a gas fireplace and a gas stove. Air conditioning ensures year-round comfort. The single attached garage and concrete driveway add to the convenience and curb appeal. Located within walking distance to Tara's quaint downtown, schools, sports fields, and the community centre, this home is ideal for anyone seeking a blend of small-town charm and modern amenities. Don't miss your chance to own a riverfront gem. Appliances are included and the HWT heater is owned (2024). Taxes are in addition to the water/sewer/garbage fee. (id:14494)
| MLS® Number | X12090053 |
| Property Type | Single Family |
| Community Name | Arran-Elderslie |
| Amenities Near By | Schools |
| Community Features | Community Centre |
| Easement | Unknown, None |
| Features | Irregular Lot Size, Sump Pump |
| Parking Space Total | 4 |
| View Type | River View, Direct Water View |
| Water Front Type | Waterfront |
| Bathroom Total | 2 |
| Bedrooms Above Ground | 2 |
| Bedrooms Below Ground | 2 |
| Bedrooms Total | 4 |
| Age | 31 To 50 Years |
| Amenities | Fireplace(s) |
| Appliances | Dryer, Freezer, Stove, Washer, Refrigerator |
| Architectural Style | Bungalow |
| Basement Development | Finished |
| Basement Features | Walk Out |
| Basement Type | N/a (finished) |
| Construction Style Attachment | Detached |
| Cooling Type | Wall Unit |
| Exterior Finish | Brick Veneer, Vinyl Siding |
| Fireplace Present | Yes |
| Fireplace Total | 2 |
| Foundation Type | Concrete |
| Heating Fuel | Natural Gas |
| Heating Type | Baseboard Heaters |
| Stories Total | 1 |
| Size Interior | 700 - 1,100 Ft2 |
| Type | House |
| Utility Water | Municipal Water |
| Attached Garage | |
| Garage |
| Access Type | Public Road, Year-round Access |
| Acreage | No |
| Fence Type | Fenced Yard |
| Land Amenities | Schools |
| Sewer | Sanitary Sewer |
| Size Depth | 154 Ft |
| Size Frontage | 51 Ft |
| Size Irregular | 51 X 154 Ft |
| Size Total Text | 51 X 154 Ft |
| Surface Water | River/stream |
| Zoning Description | R1 |
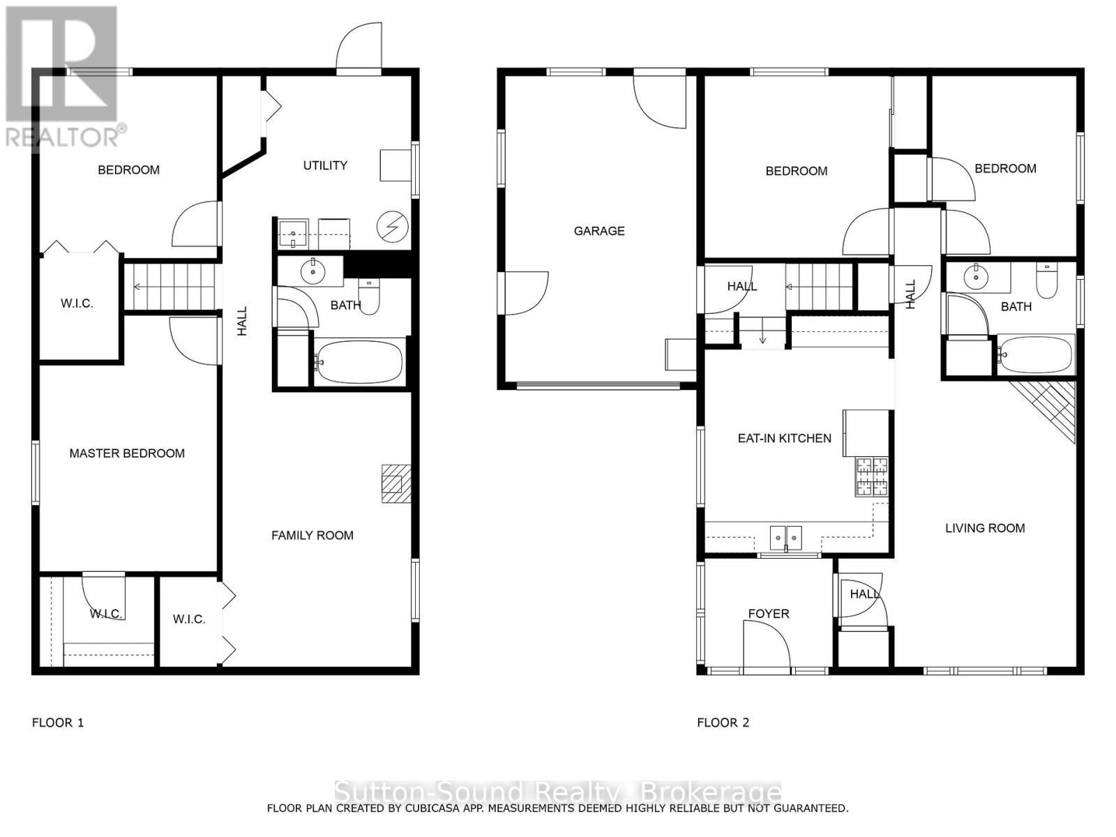
| Level | Type | Length | Width | Dimensions |
|---|---|---|---|---|
| Basement | Utility Room | 3.63 m | 3.36 m | 3.63 m x 3.36 m |
| Basement | Bedroom 4 | 3.42 m | 3.51 m | 3.42 m x 3.51 m |
| Basement | Bedroom | 3.42 m | 4.92 m | 3.42 m x 4.92 m |
| Basement | Bathroom | 2.58 m | 2.53 m | 2.58 m x 2.53 m |
| Basement | Family Room | 3.64 m | 5.29 m | 3.64 m x 5.29 m |
| Main Level | Living Room | 3.51 m | 5.51 m | 3.51 m x 5.51 m |
| Main Level | Kitchen | 3.55 m | 4.56 m | 3.55 m x 4.56 m |
| Main Level | Bedroom 2 | 3.55 m | 3.5 m | 3.55 m x 3.5 m |
| Main Level | Bedroom 3 | 3.48 m | 2.78 m | 3.48 m x 2.78 m |
| Main Level | Bathroom | 2.51 m | 2.19 m | 2.51 m x 2.19 m |
| Main Level | Foyer | 2.47 m | 2.09 m | 2.47 m x 2.09 m |
https://www.realtor.ca/real-estate/28184741/60-mill-street-arran-elderslie-arran-elderslie
Krista Gill
Salesperson
(519) 370-2100