8 Bedroom
4 Bathroom
1,500 - 2,000 ft2
Hot Water Radiator Heat
$774,900
Downtown Century Home! This home has great bones. Can be purchased to house hack, BRRRR or renovate to a family home. Many strategies available, you will understand why when you see the house. High ceilings, spacious principal rooms, great front porch, grand entrance, lots of space and character, red brick all around and stone lintels. Excellent mechanicals to work with, hot water boiler (2015), all copper plumbing, updated 200 amp electrical service, roof re-shingled in 2022, most windows replaced in 2001 - This will make a fabulous single family home or investment property - Excellent Opportunity! (id:14494)
Property Details
|
MLS® Number
|
X11966490 |
|
Property Type
|
Single Family |
|
Community Name
|
Downtown |
|
Amenities Near By
|
Public Transit |
|
Equipment Type
|
Water Heater |
|
Features
|
Sloping |
|
Parking Space Total
|
2 |
|
Rental Equipment Type
|
Water Heater |
|
Structure
|
Porch |
Building
|
Bathroom Total
|
4 |
|
Bedrooms Above Ground
|
5 |
|
Bedrooms Below Ground
|
3 |
|
Bedrooms Total
|
8 |
|
Age
|
100+ Years |
|
Appliances
|
Water Meter, Dryer, Stove, Washer, Refrigerator |
|
Basement Development
|
Finished |
|
Basement Features
|
Separate Entrance |
|
Basement Type
|
N/a (finished) |
|
Construction Style Attachment
|
Detached |
|
Exterior Finish
|
Brick, Vinyl Siding |
|
Foundation Type
|
Stone |
|
Half Bath Total
|
2 |
|
Heating Fuel
|
Natural Gas |
|
Heating Type
|
Hot Water Radiator Heat |
|
Stories Total
|
3 |
|
Size Interior
|
1,500 - 2,000 Ft2 |
|
Type
|
House |
|
Utility Water
|
Municipal Water |
Parking
Land
|
Acreage
|
No |
|
Land Amenities
|
Public Transit |
|
Sewer
|
Sanitary Sewer |
|
Size Depth
|
128 Ft |
|
Size Frontage
|
48 Ft |
|
Size Irregular
|
48 X 128 Ft ; Irregular |
|
Size Total Text
|
48 X 128 Ft ; Irregular |
|
Zoning Description
|
R1b |
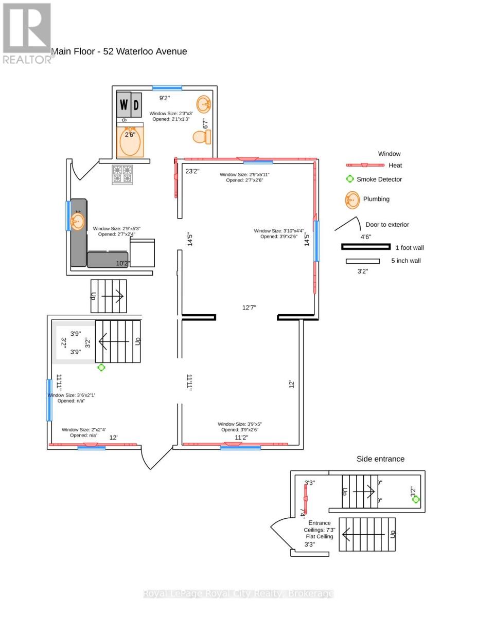
Rooms
| Level |
Type |
Length |
Width |
Dimensions |
|
Second Level |
Bathroom |
2 m |
2.5 m |
2 m x 2.5 m |
|
Second Level |
Bedroom |
3.58 m |
2.9 m |
3.58 m x 2.9 m |
|
Second Level |
Bedroom |
3.73 m |
3.48 m |
3.73 m x 3.48 m |
|
Second Level |
Bedroom |
3.96 m |
2.62 m |
3.96 m x 2.62 m |
|
Third Level |
Bathroom |
1.5 m |
1.5 m |
1.5 m x 1.5 m |
|
Third Level |
Bedroom |
3.66 m |
3.73 m |
3.66 m x 3.73 m |
|
Third Level |
Bedroom |
2.44 m |
2.08 m |
2.44 m x 2.08 m |
|
Basement |
Bathroom |
1.5 m |
2.5 m |
1.5 m x 2.5 m |
|
Main Level |
Living Room |
4.04 m |
3.45 m |
4.04 m x 3.45 m |
|
Main Level |
Dining Room |
4.42 m |
3.86 m |
4.42 m x 3.86 m |
|
Main Level |
Kitchen |
3.45 m |
3.3 m |
3.45 m x 3.3 m |
|
Main Level |
Foyer |
3.63 m |
2.44 m |
3.63 m x 2.44 m |
|
Main Level |
Bathroom |
1.5 m |
1.5 m |
1.5 m x 1.5 m |
https://www.realtor.ca/real-estate/27900590/52-waterloo-avenue-guelph-downtown-downtown