27 Carson Lake Crescent South Bruce Peninsula, Ontario N0H 2G0

4 Bedroom 3 Bathroom 1,100 - 1,500 ft2
Bungalow Fireplace Central Air Conditioning Forced Air

$819,000

Beautiful quality built, turnkey home in a desirable area of Sauble Beach with over 2700 sq ft of finished living space! Located on a quiet crescent walkable distance to the gorgeous white sand beaches of Lake Huron and all amenities, this is the perfect spot for a growing family or to entertain guests. This spacious home has in-law potential with two large bedrooms downstairs, rec room with fireplace and 4 piece bath, or use as a getaway for the whole family to enjoy! Relax on the back patio, or by the firepit on those cooler nights. Take advantage of all that the area has to offer - time at the beach, kayaking, hiking trails, ATV and many, many more activities! Summer fun awaits! This home is being sold furnished so just move in and enjoy! (id:14494)

Open House

This property has open houses!

April
27
Sunday
Starts at:

12:00 pm

Ends at:

2:00 pm

Property Details

MLS® Number X12091282
Property Type Single Family
Community Name South Bruce Peninsula
Amenities Near By Place Of Worship
Community Features Community Centre, School Bus
Features Wooded Area
Parking Space Total 6
Structure Shed

Building

Bathroom Total 3
Bedrooms Above Ground 2
Bedrooms Below Ground 2
Bedrooms Total 4
Age 31 To 50 Years
Amenities Fireplace(s)
Appliances Water Heater, Water Softener, Dishwasher, Dryer, Microwave, Stove, Washer, Refrigerator
Architectural Style Bungalow
Basement Development Finished
Basement Type Full (finished)
Construction Style Attachment Detached
Cooling Type Central Air Conditioning
Exterior Finish Stone, Steel
Fire Protection Smoke Detectors
Fireplace Present Yes
Fireplace Total 2
Foundation Type Poured Concrete
Heating Fuel Natural Gas
Heating Type Forced Air
Stories Total 1
Size Interior 1,100 - 1,500 Ft2
Type House
Utility Water Sand Point

Parking

Attached Garage
Garage

Land

Acreage No
Land Amenities Place Of Worship
Sewer Septic System
Size Depth 190 Ft
Size Frontage 81 Ft ,4 In
Size Irregular 81.4 X 190 Ft
Size Total Text 81.4 X 190 Ft
Surface Water Lake/pond
Zoning Description R3

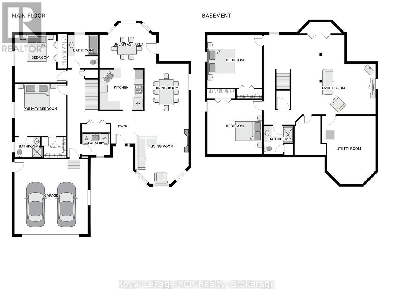
Rooms

Level Type Dimensions
Basement Bedroom 3 4.22 m x 4.06 m
Basement Bedroom 4 4.22 m x 4.14 m
Basement Recreational, Games Room 6.63 m x 6.1 m
Basement Utility Room 5.26 m x 3.86 m
Main Level Living Room 9.45 m x 4.06 m
Main Level Dining Room 4.34 m x 3.45 m
Main Level Kitchen 3.3 m x 3.07 m
Main Level Primary Bedroom 3.99 m x 3.94 m
Main Level Bedroom 2 3.61 m x 3.3 m
Main Level Laundry Room 2.13 m x 1.73 m

https://www.realtor.ca/real-estate/28187200/27-carson-lake-crescent-south-bruce-peninsula-south-bruce-peninsula

Liz Holloway
Salesperson

(519) 376-9210
www.lizhollowayrealestate.com/
www.facebook.com/liz.vieira
www.linkedin.com/in/liz-holloway-5476a939/
www.instagram.com/lizhollowaysells/?hl=en

Royal LePage Rcr Realty
820 10th St W
Owen Sound, N4K 3S1

(519) 376-9210
(519) 376-1355