221126 Grey Road 9 West Grey, Ontario N0G 2M0

4 Bedroom 1 Bathroom 1,100 - 1,500 ft2
Bungalow Fireplace Central Air Conditioning, Air Exchanger Forced Air

$499,900

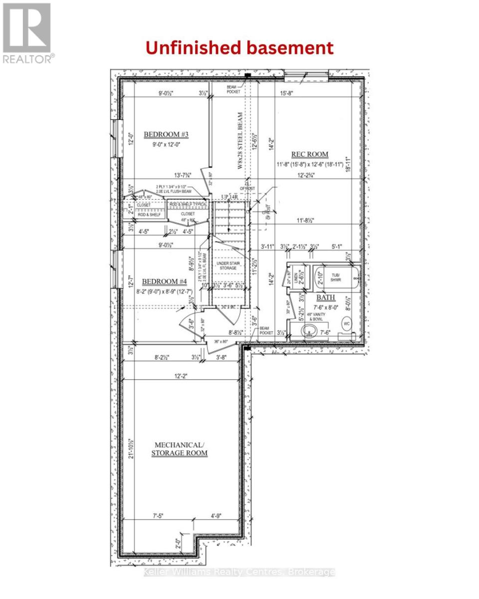
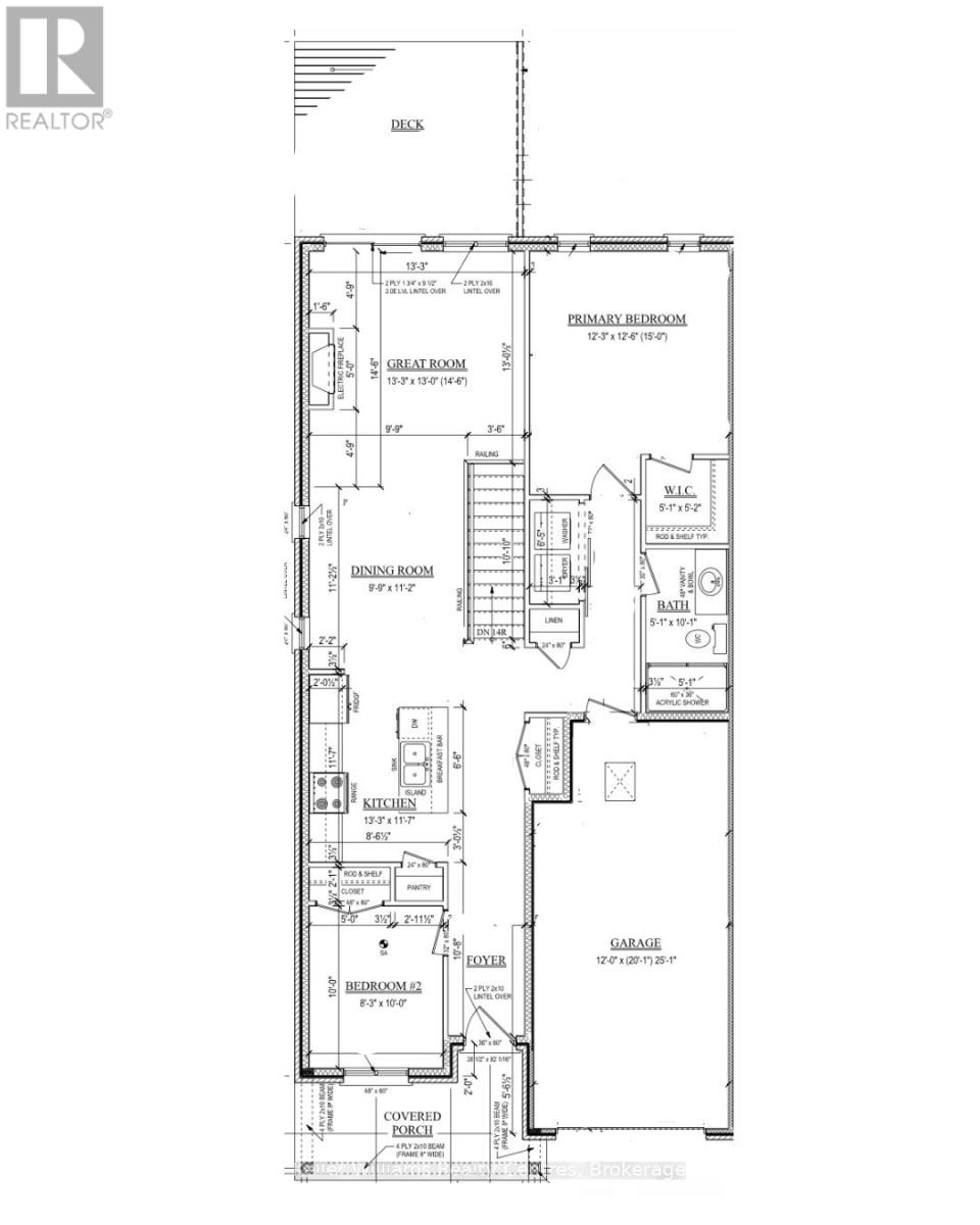
Affordable semi-detached home in Neustadt built by Candue Homes. This home offers main level living, single car garage, a paved driveway, sodded lawn and Tarion Warranty!! Enter from the covered front porch into your foyer, leading straight into the bright & open concept kitchen, dining, and living space. Kitchen offers quartz countertops, island with bar seating, pantry closet, and full appliance package. In the living space you'll find a beautiful fireplace, and a patio door walkout to the rear deck with a privacy wall. There are 2 bedrooms on this level, including the primary bedroom at the back of the home with a walk-in closet. The 3pc bath (quartz counters), laundry and linen closet are all conveniently located in the same hallway. The basement offers future development potential. (id:14494)

Property Details

MLS® Number X12047545
Property Type Single Family
Community Name West Grey
Amenities Near By Place Of Worship, Park
Community Features Community Centre
Easement Easement
Parking Space Total 3
Structure Deck, Porch

Building

Bathroom Total 1
Bedrooms Above Ground 2
Bedrooms Below Ground 2
Bedrooms Total 4
Age New Building
Amenities Fireplace(s)
Appliances Garage Door Opener Remote(s), Water Heater, Water Softener, Dishwasher, Dryer, Garage Door Opener, Microwave, Stove, Washer, Refrigerator
Architectural Style Bungalow
Basement Development Unfinished
Basement Type Full (unfinished)
Construction Style Attachment Semi-detached
Cooling Type Central Air Conditioning, Air Exchanger
Exterior Finish Stone
Fire Protection Smoke Detectors
Fireplace Present Yes
Fireplace Total 1
Foundation Type Poured Concrete
Heating Fuel Natural Gas
Heating Type Forced Air
Stories Total 1
Size Interior 1,100 - 1,500 Ft2
Type House
Utility Water Municipal Water

Parking

Attached Garage
Garage

Land

Acreage No
Land Amenities Place Of Worship, Park
Sewer Sanitary Sewer
Size Depth 127 Ft ,10 In
Size Frontage 30 Ft ,4 In
Size Irregular 30.4 X 127.9 Ft
Size Total Text 30.4 X 127.9 Ft
Surface Water River/stream
Zoning Description R2

Rooms

Level Type Dimensions
Ground Level Kitchen 4.0538 m x 3.3741 m
Ground Level Dining Room 3.0175 m x 3.4138 m
Ground Level Living Room 4.0538 m x 3.9624 m
Ground Level Bedroom 3.749 m x 3.8405 m
Ground Level Bedroom 2 2.5298 m x 3.048 m

Utilities

Cable Available
Sewer Installed

https://www.realtor.ca/real-estate/28087571/221126-grey-road-9-west-grey-west-grey

Tracey Kirstine
Salesperson

(519) 881-8087
www.youtube.com/embed/Jz1no3bmMYQ
kirstinecassidyrealtygroup.com/
www.facebook.com/traceykirstinerealtygroup
www.instagram.com/kirstinecassidyrealtygroup/

Keller Williams Realty Centres
517 10th Street
Hanover, Ontario N4N 1R4

(877) 895-5972
(905) 895-3030
kwrealtycentres.com/

Livia Cassidy
Salesperson

(226) 668-0041
kirstinecassidyrealtygroup.com/
www.facebook.com/traceykirstinerealtygroup
www.instagram.com/kirstinecassidyrealtygroup/ www.instagram.com/kirstinecassidyrealtygroup/

Keller Williams Realty Centres
517 10th Street
Hanover, Ontario N4N 1R4

(877) 895-5972
(905) 895-3030
kwrealtycentres.com/