3 Bedroom
3 Bathroom
Forced Air
$699,777
Prime Location in sought after "Stonebridge by the Bay". Discover this fantastic 3-bedroom, 3-bathroom townhome in the heart of Wasaga Beach. This home offers an open concept spacious living area, family room, kitchen with island, main floor primary bedroom. One car garage, fenced-in yard, within walking distance to the beach and all amenities, this home is perfect for those seeking convenience and comfort. Priced to sell - don't miss out on this opportunity to live in a maintenance free property! (id:14494)
Property Details
|
MLS® Number
|
S12009739 |
|
Property Type
|
Single Family |
|
Community Name
|
Wasaga Beach |
|
Amenities Near By
|
Beach, Park, Schools |
|
Features
|
Flat Site |
|
Parking Space Total
|
2 |
Building
|
Bathroom Total
|
3 |
|
Bedrooms Above Ground
|
3 |
|
Bedrooms Total
|
3 |
|
Age
|
6 To 15 Years |
|
Appliances
|
Dryer, Stove, Washer, Window Coverings, Refrigerator |
|
Basement Development
|
Unfinished |
|
Basement Type
|
Full (unfinished) |
|
Construction Style Attachment
|
Attached |
|
Foundation Type
|
Concrete |
|
Heating Fuel
|
Natural Gas |
|
Heating Type
|
Forced Air |
|
Stories Total
|
2 |
|
Type
|
Row / Townhouse |
|
Utility Water
|
Municipal Water |
Parking
Land
|
Access Type
|
Year-round Access |
|
Acreage
|
No |
|
Land Amenities
|
Beach, Park, Schools |
|
Sewer
|
Sanitary Sewer |
|
Size Irregular
|
50.23 Acre |
|
Size Total Text
|
50.23 Acre|under 1/2 Acre |
|
Zoning Description
|
Ct2 |
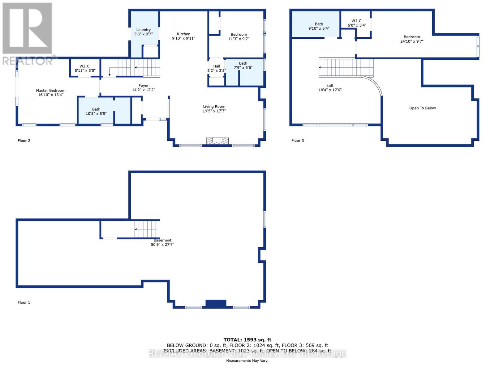
Rooms
| Level |
Type |
Length |
Width |
Dimensions |
|
Second Level |
Family Room |
5.18 m |
5.59 m |
5.18 m x 5.59 m |
|
Second Level |
Bedroom |
2.84 m |
3.73 m |
2.84 m x 3.73 m |
|
Second Level |
Bathroom |
1.52 m |
3 m |
1.52 m x 3 m |
|
Main Level |
Living Room |
3.28 m |
5.49 m |
3.28 m x 5.49 m |
|
Main Level |
Kitchen |
3.05 m |
3.12 m |
3.05 m x 3.12 m |
|
Main Level |
Bathroom |
1.63 m |
2.72 m |
1.63 m x 2.72 m |
|
Main Level |
Bedroom |
2.92 m |
3.68 m |
2.92 m x 3.68 m |
|
Main Level |
Bedroom |
3.96 m |
5.23 m |
3.96 m x 5.23 m |
|
Main Level |
Bathroom |
1.83 m |
3.05 m |
1.83 m x 3.05 m |
Utilities
|
Cable
|
Available |
|
Wireless
|
Available |
|
Sewer
|
Installed |
https://www.realtor.ca/real-estate/28001652/2-loggers-gate-wasaga-beach-wasaga-beach