151 Rosanne Circle Wasaga Beach, Ontario L9Z 0N1

4 Bedroom 4 Bathroom
Fireplace Central Air Conditioning Forced Air

$999,000

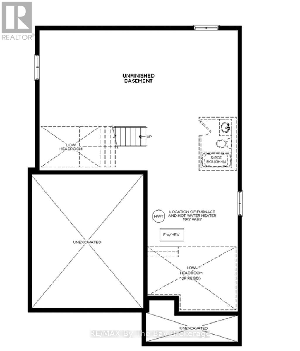
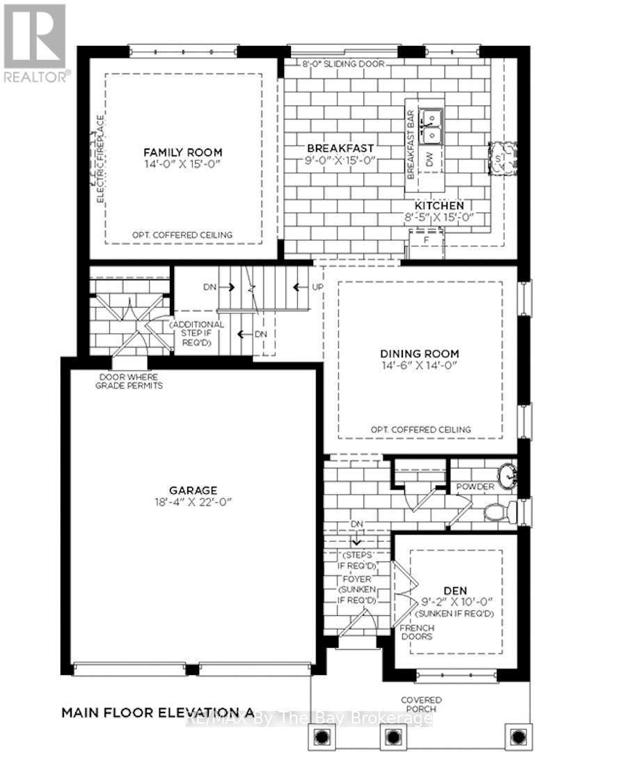
Are you searching for a new home that has never been lived in, and is available right now? Look no further. This stunning 4-bedroom home, situated in the prestigious new River's Edge Development by Zancor Homes, is ready for you and your family. Say goodbye to worrying about completion dates and delays; this home is move-in ready and is a perfect blend of modern living and family-friendly features, ensuring all the space and flexibility you could wish for. A bright and airy main floor; the open-plan family room and eat-in kitchen are designed to let in an abundance of natural light, creating a warm and inviting atmosphere. For those special occasions, enjoy a slightly separated formal dining area that provides the perfect setting for family gatherings and dinner parties. Located at the front of the home is the private den or office. A space that is perfect for those who work from home or need a quiet area for studying or hobbies.The second floor features 2 bedrooms with private en suites and another 2 bedrooms sharing a convenient Jack and Jill bathroom. No more hauling laundry up and down stairs; a second-floor laundry room adds to the convenience of family living. Need more space? The unfinished basement offers plenty of potential for additional living areas, with lots of windows, natural light, and high ceilings. Brand new elementary school 5 minutes walk away. Stores, restaurants and amenities plus of course the beach are only 5 minutes drive away.This west end location is only 15 minutes drive to Collingwood & Ontarios largest ski resort, the Village at Blue Mountain is 25 minutes away (id:14494)

Property Details

MLS® Number S11962128
Property Type Single Family
Community Name Wasaga Beach
Parking Space Total 4

Building

Bathroom Total 4
Bedrooms Above Ground 4
Bedrooms Total 4
Appliances Water Heater - Tankless
Basement Type Full
Construction Style Attachment Detached
Cooling Type Central Air Conditioning
Exterior Finish Stone, Vinyl Siding
Fireplace Present Yes
Foundation Type Concrete
Half Bath Total 1
Heating Fuel Natural Gas
Heating Type Forced Air
Stories Total 2
Type House
Utility Water Municipal Water

Parking

Attached Garage

Land

Acreage No
Sewer Sanitary Sewer
Size Depth 112 Ft
Size Frontage 43 Ft ,6 In
Size Irregular 43.5 X 112 Ft
Size Total Text 43.5 X 112 Ft

Rooms

Level Type Dimensions
Second Level Primary Bedroom 5.18 m x 4.57 m
Second Level Bedroom 2 4.95 m x 3.35 m
Second Level Bedroom 3 3.76 m x 3.05 m
Second Level Bedroom 4 3.86 m x 3.05 m
Main Level Family Room 4.57 m x 4.27 m
Main Level Kitchen 5.37 m x 4.57 m
Main Level Dining Room 4.42 m x 4.27 m
Main Level Den 3.05 m x 2.79 m

https://www.realtor.ca/real-estate/27890911/151-rosanne-circle-wasaga-beach-wasaga-beach

Andrew Mckay
Salesperson

(705) 429-4500
www.wasagabeachtalking.com/
www.facebook.com/WasagaBeachTalk
twitter.com/wasagabeachtalk
www.linkedin.com/in/mckay-wasagabeach/
www.instagram.com/wasagabeachtalking/

RE/MAX By The Bay Brokerage
6-1263 Mosley Street
Wasaga Beach, Ontario L9Z 2Y7

(705) 429-4500
(705) 429-4019
www.remaxbythebay.ca/

Jeff Mcinnis
Broker

(705) 446-6438

RE/MAX By The Bay Brokerage
6-1263 Mosley Street
Wasaga Beach, Ontario L9Z 2Y7

(705) 429-4500
(705) 429-4019
www.remaxbythebay.ca/