12 Memorial Park Drive Kincardine, Ontario N0G 2T0

2 Bedroom 1 Bathroom 700 - 1,100 ft2
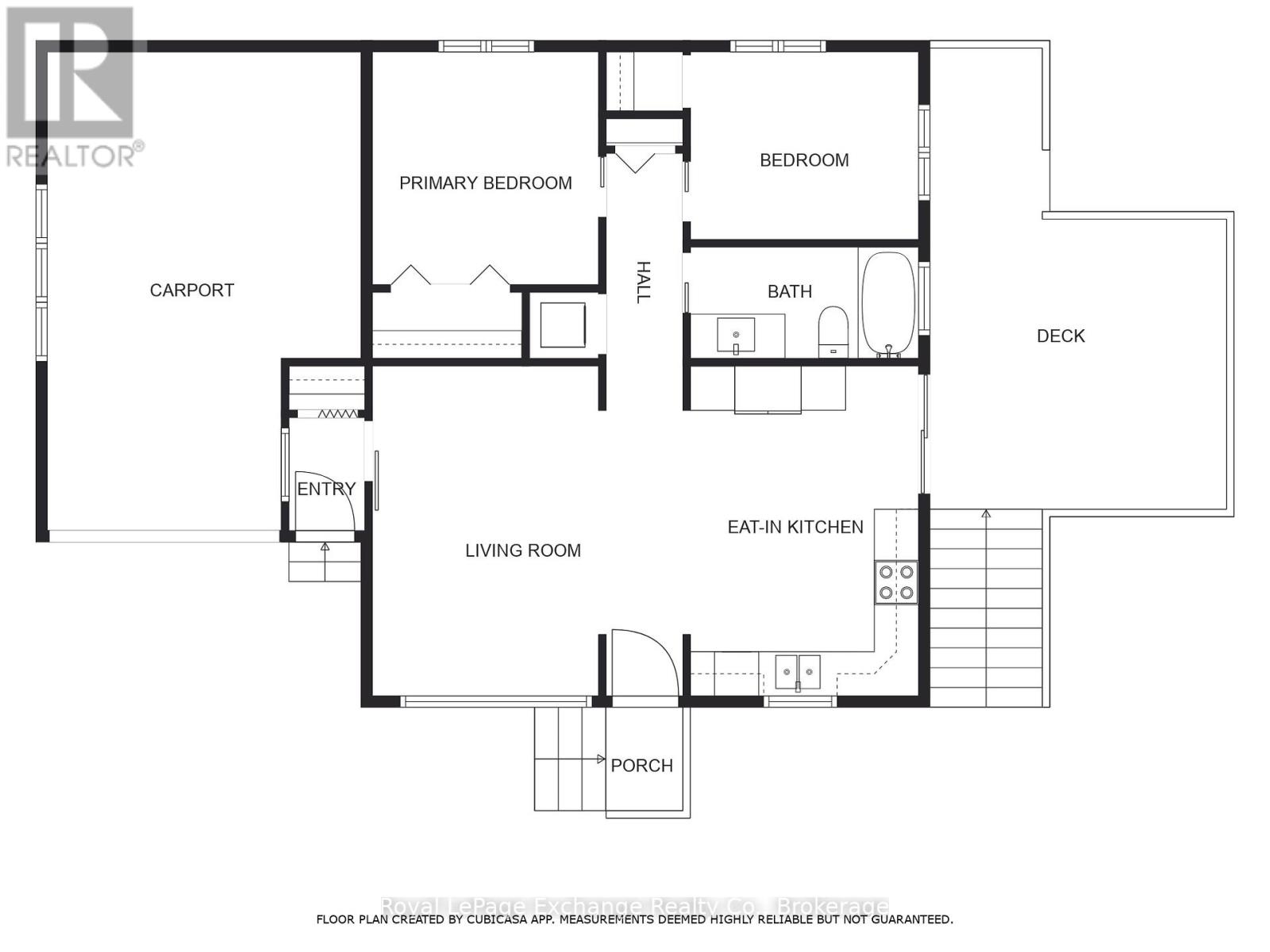
Bungalow Other

$379,900

Move in ready, 2 bedroom bungalow located in the quiet Hamlet of Tiverton. Open concept kitchen and living room makes it great for entertaining. Stainless steel appliances, an abundance of cabinetry, quartz countertops and slate floors gives the kitchen the wow factor. 2 nice sized bedrooms and a 4 piece bath complete with custom tile. In-floor heat in the kitchen, hallway, bathroom and bedrooms. A new deck has been installed off the kitchen for added entertaining space. The carport is an added bonus especially this winter. Located between Kincardine and Port Elgin and a short drive to Lake Huron and Bruce Power. (id:14494)

Property Details

MLS® Number X11989883
Property Type Single Family
Community Name Kincardine
Amenities Near By Park, Place Of Worship, Schools
Community Features Community Centre
Features Wooded Area, Carpet Free
Parking Space Total 3
Structure Deck

Building

Bathroom Total 1
Bedrooms Above Ground 2
Bedrooms Total 2
Age 51 To 99 Years
Appliances Water Heater - Tankless, Water Meter, Blinds, Dishwasher, Dryer, Stove, Washer, Refrigerator
Architectural Style Bungalow
Basement Type Crawl Space
Construction Style Attachment Detached
Exterior Finish Wood, Vinyl Siding
Foundation Type Block
Heating Fuel Electric
Heating Type Other
Stories Total 1
Size Interior 700 - 1,100 Ft2
Type House
Utility Water Municipal Water

Parking

Carport

Land

Acreage No
Land Amenities Park, Place Of Worship, Schools
Sewer Sanitary Sewer
Size Depth 88 Ft ,4 In
Size Frontage 174 Ft ,1 In
Size Irregular 174.1 X 88.4 Ft
Size Total Text 174.1 X 88.4 Ft
Surface Water River/stream
Zoning Description Ep R1

Rooms

Level Type Dimensions
Main Level Kitchen 2.9 m x 4.39 m
Main Level Living Room 3.02 m x 4.54 m
Main Level Bedroom 2.47 m x 2.47 m
Main Level Bedroom 2 3.02 m x 3.08 m

Utilities

Cable Installed
Sewer Installed

https://www.realtor.ca/real-estate/27955741/12-memorial-park-drive-kincardine-kincardine

Jeff Scott
Salesperson

(519) 396-3396
jeffsellskincardine.com/
www.facebook.com/pages/Jeff-Scott-Sales-Representative-ReMax-Land-Exchange-Ltd-Kincardine/1824993585

Royal LePage Exchange Realty Co.
777 Queen St
Kincardine, Ontario N2Z 2Z4

(519) 396-3396
www.royallepageexchange.com/